
Voici la présentation d’un chantier qui s’est déroulé sur une période de deux ans. Situé dans la commune de Pyla-sur-Mer, ce projet a consisté en une refonte complète du jardin : parking, accès, plantations, portail, piscine, terrasse, dallage, pool house…
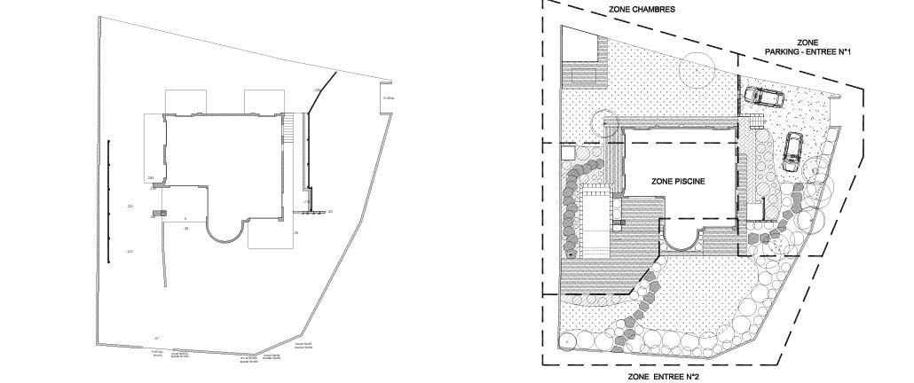
Pour l’aménagement et le chiffrage, le jardin a été décomposé en quatre zones.


Zone parking et entrée n°1
À l’origine, le parking présentait un dénivelé et l’accès à la maison se faisait par un escalier. Nous avons réalisé un parking avec moins de dénivellement grâce à la mise en place d’un enrochement et d’un muret en pierre.
L’accès à la maison ne se fait désormais plus par un escalier, mais par des pas japonais en béton empreinte. Pour accéder au rez-de-chaussée, un nouvel escalier ainsi qu’une zone de dallage ont été créés, permettant également l’accès au local vélo.
Les piliers et le portail ont été rehaussés. Les arbres conservés ont été élagués et de nouvelles plantations sont venues compléter l’aménagement.




Zone entrée n°2
Cette zone porte ce nom en raison de la présence d’un decond portail permettant d’accéder au terrain.
Dans cette zone, nous avons arraché la majeure partie des végétaux existants. Fait un apport de terre d’environ 50 tonnes, suivi de la plantation de 27 arbustes et 11 arbres de grande taille, afin de masquer au maximum la vue de la maison depuis la rue.
Un engazonnement par placage a été mis en place, accompagné d’un système d’arrosage pour la pelouse et les végétaux.
Le portail a été conservé pour un accès secondaire. Afin de le dissimuler, des plantations ont été réalisées en façade, tout en maintenant un passage piéton intégré au massif.



Zone piscine
Voici la zone la plus complexe de l’aménagement. Dans cet espace étroit, nous avons intégré une piscine à débordement de 8 m × 3 m × 1,50 m de profondeur, implantée au plus près de la maison afin de faciliter l’accès et d’offrir une vue permanente depuis l’intérieur. Initialement, la piscine devait être au même niveau que la terrasse couverte de la maison. Toutefois, pour des raisons de sécurité, un palier a été créé afin de réduire la hauteur de chute et permettre aux adultes, depuis le pool house, de surveiller plus facilement les enfants. Les parties visibles extérieures de la piscine sont habillées de parements en pierre. Un cheminement composé de grands pas japonais permet de rejoindre aisément la partie plus basse du jardin.
Sur toute la longueur du jardin, une clôture composée de panneaux persiennés, agrémentés de plantes grimpantes, a été mise en place afin de préserver l’intimité vis-à-vis du voisinage tout en conservant un aspect naturel. En contrebas de la piscine se situe le local technique semi-enterré.










Zone chambres
Cette zone porte ce nom car trois chambres, chacune avec sa terrasse, donnent sur cet espace. Dans cette partie du jardin, les terrasses ont été entièrement refaites et reliées entre elles afin de permettre de faire le tour de la maison. Un engazonnement par placage a été réalisé, accompagné d’un système d’arrosage intégré.
Dans l’angle, en limite de propriété, nous avons construit un pool house sur mesure d’une surface de plancher de 16 m². L’abri se compose de deux grandes ouvertures matérialisées par des poteaux en pierre pouvant être fermées par des volets roulants. l’intérieur, on découvre un espace repas avec cuisine, équipée d’un ensemble entièrement en inox, digne d’un équipement professionnel, idéal pour partager de bons moments autour d’un repas.


